Heat Pumps



Most swimming pools are not useable throughout the year especially during the cold weather and therefore heating is required. A particularly effective solution is a Dayliff Heat Pump that utilises energy from two sources, heat from the ambient air and electric power to run a compressor in a reverse refrigeration cycle, the compression process extracting heat from the ambient air for transfer to the pool through a heat exchanger. The models are highly efficient operating at a Coefficient of Performance (COP), which is the ratio of energy output to direct energy input of up to a range 7-15 units, depending on environmental conditions.

The advanced SPI inverter controlled models feature DC inverter technology which provides variable heat outputs from 20% to 100% of capacity. They are more economical to run compared to fixed capacity alternatives as the heat output is automatically varied according to requirements to maintain a set temperature.

The models include an integral controller and durable weatherproof housing suitable for outdoor installation. For optimal performance it is recommended that a pool cover is used to reduce heat dissipated through evaporation. Particular features include:-

  • High efficiency, low noise Mitsubishi compressor that uses environmentally friendly R32 refrigerant
  • Advanced dual coil titanium heat exchanger for long corrosion free life
  • Remote controller to set temperature up to 40°C with digital system settings and fault indicators with WiFi enabled remote control
  • Built in protection for low water flow, high and low pressure and electrical overload
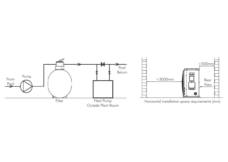
  • Fully automatic and simple to install on the filter return to pool pipe with minimum plumbing and electrical connections
  • All models suitable for reverse cooling configuration

The Dayliff range of heat pumps are robust and efficient units that are the ideal solution for cost effective swimming pool heating in a variety of conditions.

OPERATING CONDITIONS
Heating Temp Range: 15 - 40°C
Insulation Class: IPX4
Min/Max Operating Pressure: 0.2/4.4 Bar

PUMP DATA AND DIMENSIONS

Model Heating Capacity Max Input Power(kW) Current Max(A) Voltage(V) Max Flow m³hr Pool Capacity m³ Dimensions Weight(kg)
Output, kW COP Range L W H
SPI-150 2-10 7-16 0.2-1.5 7 1x240 3.5 10-40 836 379 591 43
SPI-170 4-17 0.3-2.5 12 5.5 40-70 900 400 650 65
SPI-280 7-28 0.5-4.2 19 9 80-140 1056 416 744 85
SPI-700 50 1-10 26 3X415 20 120-200 1416 752 1055 280

*Performance values given at Air 26°C, Water 26°C and Humidity 80%.