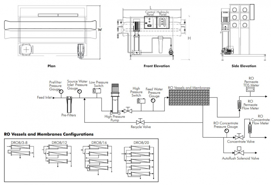
Reverse Osmosis is a proven technology to remove dissolved solids in water. At the heart of the system is the membrane, though the effectiveness of treatment relies on the correct matching of all components to provide an efficient treatment process, DAYLIFF plants being carefully engineered to provide reliability with the highest treated water quality. Systems are frame mounted with all components conveniently accessible and are designed to provide low energy consumption and long life. Standard models are suitable for low (up to 2000ppm) and medium (up to 5000ppm) brackish water applications though systems for treating higher salinity levels and sea water are available to special order. All offer the following features:-
- High efficiency 8" RO membranes specified to suit the water quality housed in strong, corrosion proof GRP pressure vessels.
- High treatment performance with up to 98% salts rejection
- High pressure in line multi stage stainless steel feed pump
- System monitoring accessories including inlet and outlet flow meters, pressure gauges and conductivity meter
- Electronic controller for fully automated plant operation including startup, periodic flush cycle and shut down as well as providing various system alarms
- Sediment removal and Carbon cartridge pre-filters
- Skid mounted for simple installation
- Corrosion resistant stainless steel high pressure and plastic low pressure pipes and pipe fittings.
ALL DAYLIFF RO plants are highly efficient, easy to operate and simple to maintain and offer the ideal solution for small and medium scale Reverse Osmosis requirements. Solar Power Option is available on request.
OPERATING PARAMETERS
Raw Water Quality: TDS level of up to 2,000ppm for the Low Brackish Water and up to 5,000ppm for the Medium Brackish Water Plant, Chloride level should be less than 350ppm, no chlorine, total hardness
Normal Rejection: 95%-98%
Water Temperature: 5-35°C, Design Temperature 25°C
Minimum Inlet Pressure: 3bar
Operating Pressure: Ranges between 4 bar and 20 bar depending on raw water quality
Recovery Range: 35% - 75% depending on raw water quality. System recovery is entirely dependent on water quality; higher TDS or silt content will reduce the recovery rate and flow rates
EQUIPMENT SPECIFICATIONS
| |
|
DRO8/3 |
DRO8/4 |
DRO8/5 |
DRO8/8 |
DRO8/12 |
DRO8/16 |
DRO8/20 |
| Flow (m³/hr) |
Permeate |
3 |
4 |
5 |
8 |
12 |
16 |
20 |
| Feed |
6 |
8 |
10 |
12 |
18 |
24 |
30 |
| Membrane |
Quantity |
4 |
8 |
12 |
16 |
20 |
| Stages |
1-1 |
2-1 |
2-2 |
3-2 |
| High Pressure Pump (2000ppm TDS) |
kW |
4 |
5.5 |
7.5 |
11 |
11 |
15 |
18.5 |
| High Pressure Pump (5000ppm TDS) |
kW |
5.5 |
7.5 |
11 |
15 |
15 |
18.5 |
22 |
| Dimensions (mm) |
L |
2700 |
5000 |
| W |
880 |
1100 |
| H |
1375 |
1800 |